LXV WILLOW CREEK PROJECT
FB PinterestTwitter Website

Dear mitra (friend)

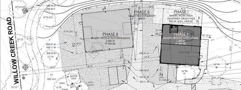
Kunal and I are very excited to share with you that we received the first round of approval for the Willow Creek Plans for a tasting room and Winery.

Willow Creek is one of the most prestigious appellations in Paso. We are fortunate to neighbor James Berry Vineyards of the famed Saxum Winery as well as Denner Vineyards, Linne Calado Vineyards, and Jack Creek Vineyards.

We have 14 acres, out of which about 8 to 10 acres are plantable.

LXV-Paso-Appellations

With largely calcareous South West facing slopes, some loams to clay loams in the low lying regions, we will explore the Bordeaux expression of the Willow Creek appellation, under the guidance of Jason Yeager - a seasoned Napa wine grower.

In Paso, daily temperatures can vary as much as 50 degrees Fahrenheit, creating the ideal environment for achieving that perfect acidity in ripening wine grapes. Each warm afternoon is greeted with cool breezes from the Pacific Ocean sweeping east through the Templeton Gap, that will allow our vines to take full advantage of Paso’s unique temperatures.

Join us for a unique tasting on the Willow Creek Property, that begins in a 90 year old barn and ends in the enchanted forest: http://www.vinovisit.com/wineries/lxv-wine/

PASO AVA & SUB-APPELLATIONS

American Viticultural Area labeling helps tell a story of a region and guide wine trade and enthusiasts in understanding growing conditions and potential expectations of a specific region.

The 11 new Paso AVAs will be a powerful tool for wineries to explain why certain grapes are particularly well suited to certain parts of the appellation, and why some wines show the characteristics they do while other wines, from the same or similar grapes, show differently. Ultimately, the new AVAs will allow these newly created sub-regions to develop identities for themselves with a clarity impossible in a single large AVA.

LXV-Paso-Appellations

(Willow Creek Property pictures)

TASTING ON WILLOW CREEK

Served in a 90 year old barn, with grape vines and rose vines climbing through the windows and, on the ceiling, and sweeping views of the property with an enchanted forest at the end of the property, you will be immersed in a unique LXV Wine tasting experience with wine & spices.

LXV-Paso-Appellations

 

To book a private tasting at the barn: http://www.vinovisit.com/wineries/lxv-wine/


LXV'S "RITU-CELEBRATION OF THE SEASONS" - HOLI

Tue, Jun 30th | Noon to 5PM (by RSVP ONLY)

@ Willow Creek Ranch, 3690 Willow Creek (Next to Changala Winery)

Holi is a carnival of colors, where participants play, chase and color each other. Anyone and everyone is fair game, friend or stranger, rich or poor, man or woman.

The festival breathes an atmosphere of social merriment. People bury their hatchets with a warm embrace and throw their worries to the wind. Though liquid colors are used in India (where it's warm) we prohibit them, as we don't want anyone to catch cold on account of the festival. Dry is better for photographs as well. There will be Indian food and LXV Wine will be available for purchase by the glass.

 

This event is for Industry and Club only, and limited to 100 people.

To RSVP for the Holi event: http://goo.gl/zHcnYl

805.296.1902 | info@lxvwine.com | www.facebook.com/lxvwine | www.lxvwine.com
1306B Pine Street, Paso Robles, CA 93446